Mặt tiền hiện đại của ngôi nhà
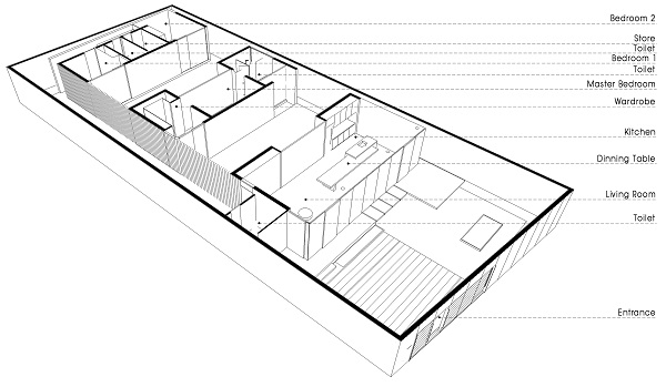
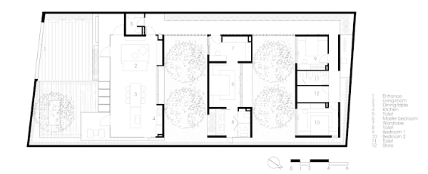
Nhờ có diện tích 470m2 - rộng hơn rất nhiều so với nhà phố thông thường nên nhà thiết kế đã lựa chọn giải pháp nhà trệt đơn giản, hiện đại với diện tích xây dựng chỉ chiếm 40%.
Tử cổng vào là thiết kế sân vườn đậm chất Á Đông với hồ nước và cây xanh. Đây là không gian sống đáng mơ ước của bất cứ ai.

Không gian sống trong lành với hồ nước và cây xanh


Chất liệu kính được sử dụng cho mảng tường phía trước tạo nên hiệu ứng phản
Thiết kế của ngôi nhà là sự hòa hợp của 2 phong cách: Phong cách Á Đông truyền thống và phong cách hiện đại, đơn giản. Dù sử dụng màu trắng, xám làm gam màu chủ đạo nhưng căn nhà vẫn toát lên vẻ ấm áp nhờ những đồ nội thất chất liệu gỗ.



Các căn phòng trong nhà được thiết kế dạng hộc kéo, khi kéo ra để lại các khoảng trống, đó là những hành lang xanh với dây leo kín tường. Các kiến trúc sư đã tối giản số lượng màu sắc sử dụng ở đây bằng cách sử dụng sơn tường màu trắng và vách ngăn là các cột gỗ để làm nổi bật lên khoảng tường xanh mướt mát.
Nhờ những bức tường kính, ánh sáng có thể len lỏi vào từng góc nhà, kể cả phòng ngủ. Tại đây, các kiến trúc sư còn sử dụng gỗ cho cả sàn và tường.

Phòng ngủ ngập tràn ánh nắng

Tuân theo đúng triết lý mang thiên nhiên vào nhà, phòng tắm cũng có những khoảng tường xanh mát mắt. Cách thiết kế đơn giản, trang nhã khiến người ta nghĩ ngay đến những ngôi nhà được thiết kế theo phong cách Nhật Bản - đề cao tính tối giản và nội thất gỗ.

Nhen nhóm từ ý tưởng về một không gian trong nhà có con đường lưu thông xanh mát, mọi ngõ ngách đều thông thoáng, các kiến trúc sư đã tạo nên một ngôi nhà với thiết kế hộc kéo độc đáo.




(Theo Homify.vn)